Engineering Success Through Timely Design
At Queen City Consulting and Design, we specialize in structural engineering solutions for residential construction. From custom structural plans to comprehensive inspections, we help our clients build with confidence—on time, every time.
Licensed in North Carolina, South Carolina, Tennessee, Virginia, West Virginia, Pennsylvania, Florida, Maryland & Mississippi.
Structural Projects
Completed
Years of Residential
Engineering Experience
Inspections Performed
Client Communication
Response Rate
State Licenses

Who Are We
Your Trusted Partner in Structural Engineering
We are a structural engineering firm that specializes in residential construction. We help contractors build with confidence by delivering thorough structural design, inspections, and consulting for residential projects. Whether you’re constructing single-family homes or multi-family developments, our engineering expertise ensures a cost-effective build that is sound and complies with local building codes.
Our thorough site inspections safeguard project integrity while streamlining project schedule. With a commitment to clear communication and fast turnaround, we work alongside clients to keep projects running smoothly.
Partner with us for reliable engineering support that helps you deliver quality-built homes.
Our Services
Our Sectors
We provide structural engineering support in the following areas
Residential Construction
Real Estate Development
Architecture & Design
Home Renovation & Remodeling
Legal & Insurance
Geotechnical & Civil Support
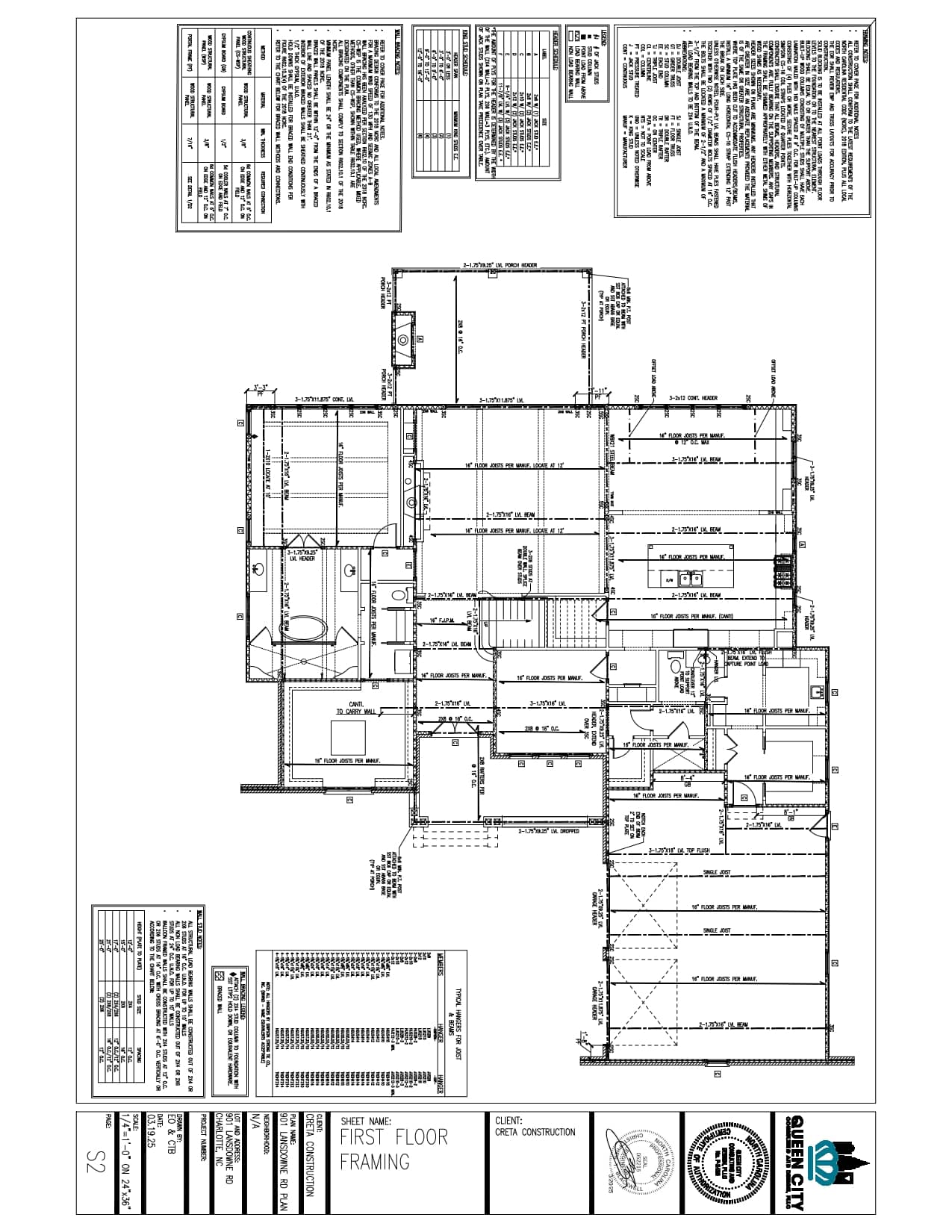
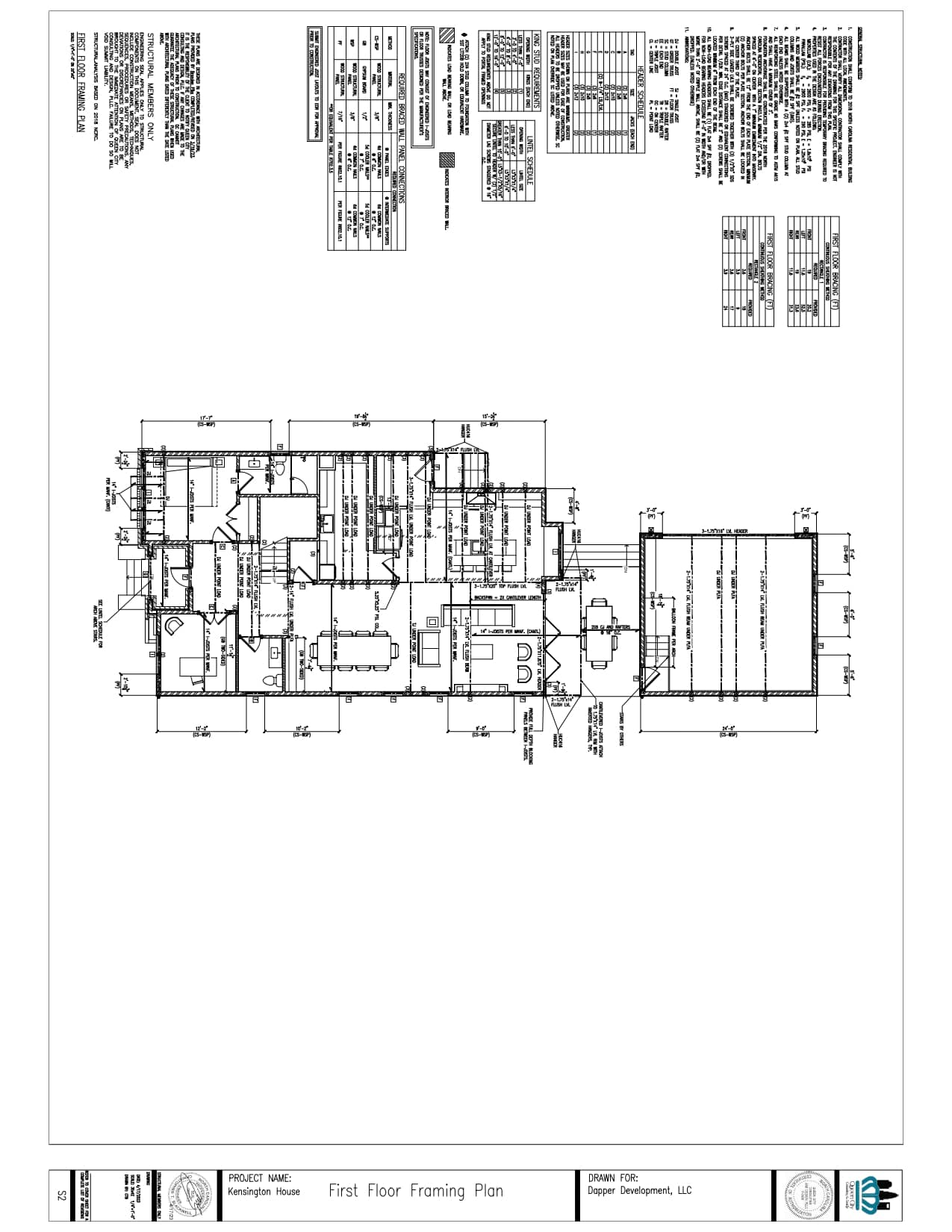
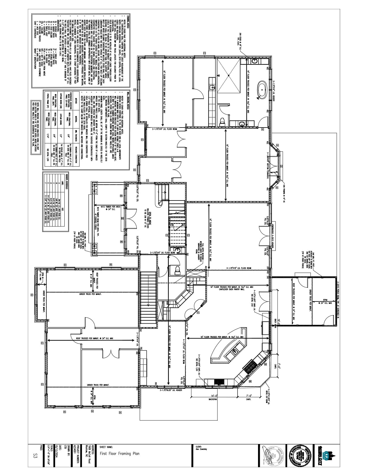
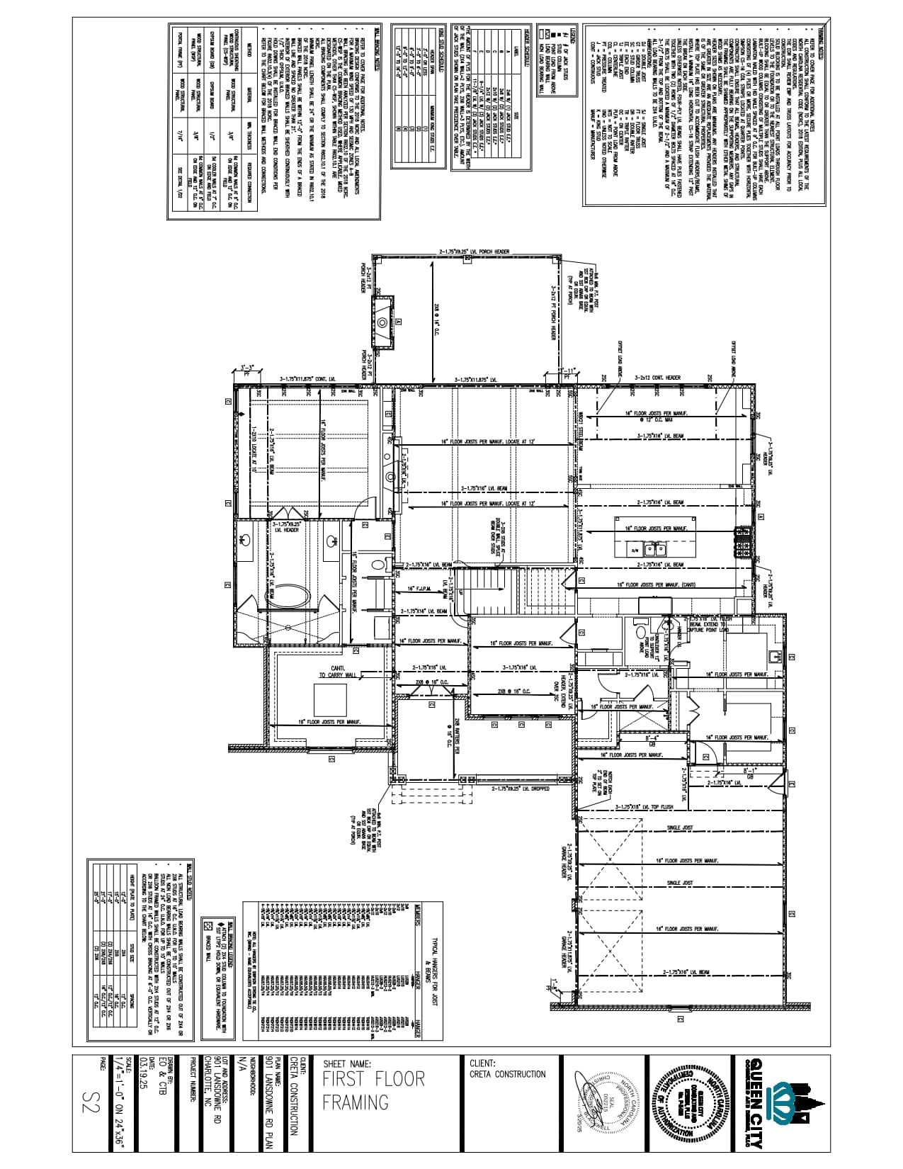
Portfolio
Need Structural Plans or Inspections?
Get accurate, code-compliant solutions for your next residential build.






Join a team that builds more than structures—we build futures.
We’re always looking for passionate professionals who are ready to make an impact in residential structural engineering. If you’re a self-starter with strong technical skills and a commitment to excellence, we want to hear from you.
FAQs
Do you provide additional engineering services other than structural?
At this time, we are not providing engineering services other than structural and light geotechnical services.
Do you perform any repairs that may be specified in your engineering report?
No, we do not perform repair work. We would be happy to refer you to a contractor to help you with repairs.
Do you provide architectural plans?
No, we do not provide architectural planning and drafting services at this time. However, we would be happy to provide you contacts that can further assist with your project.
Do you provide third party inspections in lieu of county inspections?
Yes, depending on local municipality, we can provide RDP forms and soil testing as a means to streamline the inspection process and provide quality control.
What do I need to get you started on structural plans?
You will need to provide a signed proposal; a PDF file of the house plans that include the address of the build, front/side/rear elevations; and an autocad file (.dwg) for us to get started on your plan.
What is the turnaround time?
Please email us at info@qcdesigns.com for accurate timeline for the requested project. Normal turn around time for a set of plans is approximately 3 weeks, and for field requests is approximately 2 days from inspection.
Can you look at home inspector reports?
We can provide recommendations for structural items found in home inspection reports.
Do you do structural plans?
Yes, we provide structural plans as requested for residential and lite commercial projects.




















